炎のゆらぎが演出する憧れのスローライフ
安心して、心地よく。薪ストーブとともにある日々を応援します。
宮城県柴田町・Aさん宅
家族構成/夫婦50代・40代
薪ストーブ/[NESTOR MARTIN]S43
設計・施工/(株)佐善工務店
山を背にして立つ、片流れ屋根が美しいAさん宅。庭には薪が積まれた大きな薪棚が置かれ、屋根からすっくと伸びる煙突からは白い煙がたなびいています。
スローライフを求め、佐善工務店に新築工事を依頼し、この自然豊かな地に移住したAさんご夫妻。玄関ドアを開けると、スローライフの象徴ともいえる薪ストーブが暖かく迎え入れてくれます。機種は鋳物技術の粋を極めたベルギーの「ネスターマーティンS43」。その中でも薪ストーブ料理を存分に楽しめるようにと、クッキングトップを備えたモデルを選択しました。


この機種の大きな特徴の一つが、多次燃焼方式の採用により針葉樹などが使用できる内部構造にあります。「火付きがいい針葉樹と燃焼時間が長い広葉樹を組み合わせて使えるのがいいなと思いました」。木にこだわりのあるAさんにとって、限りある資源を有効活用できる、環境に優しいシステムが決め手になったといいます。



実際に使ってみた感想を、「薪の量をそれほど消費しなくても十分に暖かいので、燃焼効率がとても良いのだなと感じています」と語るAさん。ストーブの性能もさることながら、佐善工務店の高性能な家づくりと、同社からのアドバイスで玄関土間に設置した点もベストだったと感じているそうです。「天井が一番低い位置に置いたことで、暖かい空気が循環しやすく、家の隅々までしっかりと暖まります」。



タワーマンションの高層階に住んでいた以前の暮らしとは一変。「夜、コーヒーやお酒を飲みながらぼんやりと炎を眺めている時間が、この上ない癒やしになっています」。そう話すご夫妻の笑顔と、薪ストーブの前に陣取って気持ちよさそうに眠る愛犬の姿から、幸せな薪ストーブライフの一端がうかがえました。



DATA
◆家のこと
構造規模/木造(新在来工法)・2階建て
延床面積/125.86㎡(約38坪)
◆薪ストーブのこと
機種/ネスターマーティン[S43]
炉台/約30㎝角タイル
炉壁/天然石
役割/主暖房
使い方/平日は朝と帰宅後に着火。休日は終日稼働
使用期間/10月~5月上旬
メンテナンス/年に1回程度(専門業者へ依頼)
◆薪のこと
ひと冬あたりの使用量/10㎥
使用樹種/広葉樹(サクラ材、クヌギ材、ナラ材)、針葉樹(スギ材、マツ材)
調達方法/Aさんが所属する猟友会の仲間、地元の自然系NPO法人、物々交換サイトなどを通して購入PLAN
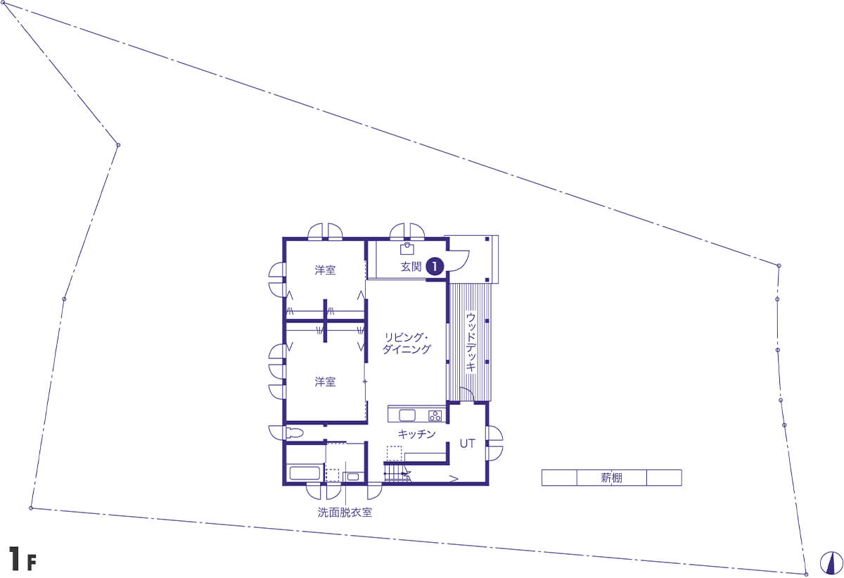
片流れ屋根の一番低い部分にあたる玄関土間に薪ストーブを設置することで、暖気の循環効率を高めた。2階ホールからも炎を眺めながらくつろぐことができる。
間取りのポイント① 暖気の循環効果を最大限に発揮できるよう、玄関土間に置かれた「ネスターマーティンS43」。土間なので掃除や薪の運び入れがしやすいなどの利点も
間取りのポイント② セカンドリビングとして使用している2階ホールからも、赤々と燃える炎を楽しむことができる owner’s voice
以前は仙台市内にあるタワーマンションで暮らしていましたが、もともと自然が好きで、歳を取るにつれて自然の中で暮らしたいという思いが強くなってきたので、自然豊かな地での家づくりを検討し始めました。自分の思い描くスローライフに薪ストーブは必須だったので、最初から薪ストーブありきで考えていましたね。佐善工務店さんには、薪ストーブ屋さんと連携して炎のある暮らしをトータルコーディネートしていただき、満足度が高かったです。また、設置後もちょっとした疑問などにその都度対応していただけるので心強いです。この冬は本格的に薪ストーブ料理に取り組んでみたいですね。仲間と薪ストーブを囲んでホームパーティーもしてみたいと思っています。(Aさん談)
薪ストーブの前でリラックスする愛犬の小麦ちゃん。心地よい輻射熱に包み込まれてうっとり
- 会社情報
- 社名 株式会社 佐善工務店
- URL http://sazen.co.jp
6人家族の暮らしを温かく支える万全の備え
五祭所の家

















