平屋の間取り成功例|坪数別・LDK別平屋のプラン10選
Replanが教える家づくりで参考にしたいアイデアの数々。
目次
- 平屋の基本とメリット・デメリット
- 平屋とは?
- 平屋のメリット
- 平屋のデメリット
- 平屋の間取りの成功例を学ぶ、坪数別10実例
- 【22坪・2LDK】屋根裏を現しにした三角屋根の平屋
- 【27坪・2LDK】ミニマムで快適な空間を。懐の深い平屋
- 【29坪・3LDK】ピットリビングが暮らしの余白をもたらす平屋
- 【30坪・3LDK】心地よい距離感で安心して暮らせる、子育てに優しいコートハウス
- 【30坪・3LDK】暮らしを支える動線が充実した平屋住宅
- 【38坪・3LDK】人と愛犬の暮らしに寄り添ったコンパクトな平屋
- 【43坪・3LDK】冬暖かく夏涼しい北海道らしいコンクリートブロックの平屋
- 【47坪・3LDK】いつも子どもに目が届く。緑と木の温もり満ちるゆとりの平屋住宅
- 【49坪・4LDK】変形敷地を生かしたスキップフロアの平屋
- 【54坪・3LDK】プライベートガーデンのある平屋の二世帯住宅
- 平屋の暮らしついてもっと知る!こちらの記事にも注目
- 形いろいろ、理由さまざま。平屋の見た目
- 家族の数だけ、かたちがある。平屋の間取り
- いごこちの科学 vol.028/平屋づくりのポイントを考える
自然に近い暮らしができる、動線がシンプルでバリアフリー、必要だけを詰め込んだ心地よさ、スッキリと空が広い外観。「平屋に住みたい」理由はさまざまですが、平屋で快適に暮らせる間取りを手に入れるためには、土地や予算といった条件だけでなく、環境や家族ごとの暮らしを考慮した間取りの工夫が必要です。今回はそんな「平屋の間取り」の成功例を、厳選してご紹介していきます。

平屋の基本とメリット・デメリット
平屋とは?
注文住宅の新築を検討している人の中には「平屋で建築したい」と希望する人も少なからずいるでしょう。住宅における平屋とは、1階建ての建物のつくりを指します。言葉の響きから、昔ながらの日本家屋をイメージする人もいるかもしれませんが、新築で建てられる平屋住宅にはいろいろなスタイルがあり、デザインや間取りもさまざまです。
2階建て、3階建ての住宅と大きく異なるのは「階段がない」点。そのため、間取りを考えるうえでのスペースの使い方や、動線にも平屋ならではの工夫が求められます。後悔しない平屋の間取りを実現するために、数多くの実例を見て自分の家族にフィットしたスタイルを見つけることが重要です。



平屋のメリット
【バリアフリー】階段がないため、高齢者や身体障がい者、小さな子どもなどが安全に自由に移動することができ、バリアフリー性が高いというメリットがあります。若い世代でも、将来のことを考えたバリアフリーの視点や、子どもに目が届きやすいというメリットから、平屋を希望する人が増えています。
【耐震性と開放感の両立】平屋は2階建てのように高さがなく、1階部分にかかる2階の荷重がないため、構造的に安定しています。柱や壁が少ない広々とした空間や、大きな開口部をつくりやすくなります。

【空間やエネルギー有効活用】階段にスペースを割く必要がないため、居室や収納などに空間を利用できます。同時に階段の位置を考慮する必要もないため、比較的自由な間取り・レイアウトを検討することができます。平屋は相対的に床面積が小さくなる傾向にあるため、暮らしにかかるエネルギーが削減できるという利点もあり、コンパクトでシンプルな暮らしを求める人にとっては、合理的な選択といえるでしょう。

【家事など生活のしやすさ】すべての部屋が同じ階にあり、上下の移動がないため、洗濯・掃除・片付けなどの家事のストレスを軽減できます。家の中での移動がしやすくシンプルな生活動線になるので、暮らしやすいともいえるでしょう。また、子どもの頃からマンションで暮らしてきた人にとっては、ワンフロアで過ごせる間取りの平屋は、慣れ親しんだ動線であるため、ストレスを感じにくいという声もあります。
【自然を身近に感じられる】平屋では常に1階で過ごしているため、屋外に出やすいことから、庭に出て自然を感じるといった暮らしのメリハリを享受しやすいのもメリットの一つです。中庭のあるコートハウスにするなどして、屋外を生活空間に取り込む工夫もしやすいのが特徴です。

平屋のデメリット
【土地の面積が必要】平屋は2階建てと同じ延床面積で建てたい場合、土地の広さの確保が条件となります。土地が決まっている場合や建坪率によっては、希望の間取りやスペースが実現できない可能性もありますので、土地選びの段階から設計士と相談して、暮らしのサイズに合わせたプランと土地を選ぶことが重要です。

【建築費が割高になる】同じ延床面積の平屋と総2階の建物を比べた場合、平屋は基礎と屋根が2階建ての倍になるため、工事費がアップして坪単価が高くなることがあります。足場の費用やメンテナンス費用など、平屋の方が抑えられるコストもありますが、相対的に見ると平屋の方が坪単価は高くなる傾向にあります。
【周辺環境の影響を受けやすい】平屋は建物の高さが低いため、隣接地に高い建物があったり、住宅が密集している場所の場合、陽当たりが悪くなったり、上からの視線が気になるというデメリットがあります。土地を読み解き、採光や通風、視線のコントロールなどに配慮し、周辺環境になじみながら快適性を保つための間取り計画が求められます。


平屋の間取りの成功例を学ぶ、坪数別10実例
【22坪・2LDK】屋根裏を現しにした三角屋根の平屋
「可能であれば平屋。数値的な広さにこだわらず身の丈にあった家に住みたい」という要望のもと、内部空間を楽しめるようシンプルなに設計された住まい。キッチンからリビングまでは程よい広さ。LDKを囲む個室は、間仕切り壁を小屋梁までとし天井高を抑え、緩やかに家全体がつながる住空間を実現しています。



▶︎事例の詳細はこちらから「屋根裏を現しにした個性的な空間が暮らしにリズムをもたらす」
【27坪・2LDK】ミニマムで快適な空間を。懐の深い平屋
『ヒュッゲ』の思想を家づくりのベースとして、自分が心地よくくつろげる空間を気の合う仲間と共有したい、という思いで出来上がった平屋の住まい。リビングや水まわりなど生活空間はすべてフローリングでバリアフリーにし、極限まで機能的に使えるように徹底的に詰める一方、人が集う空間はゆとりと心地よさが追求されています。寄り付きのベンチや、膝を崩して座れる和室、茶室を彷彿とさせる上品な設えが訪れる人を楽しませる間取りの工夫に心躍ります。



▶︎事例の詳細はこちらから「ミニマムで快適な空間を。懐の深い平屋」
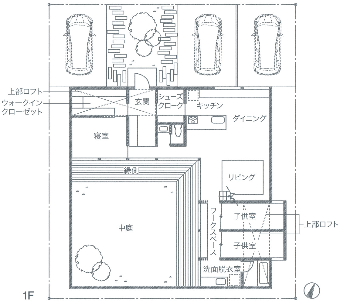
【29坪・3LDK】ピットリビングが暮らしの余白をもたらす平屋
ダウンフロアやワークスペース、縁側などL字型の間取りの中に、居心地のいい居場所がたくさんある住まい。家の中央に据えたキッチンからは、外の景色も室内も一望できます。大空間のLDK、広くてシンプルなつくりの縁側や中庭など、暮らしの楽しみを自分たちで発見し、自由に創造していける余白に満ちた平屋住宅です。




▶︎事例の詳細はこちらから「ピットリビングが暮らしの余白をもたらす平屋」
【30坪・3LDK】心地よい距離感で安心して暮らせる、子育てに優しいコートハウス
住宅密集地でも周囲の目線を気にせずのびやかに暮らせるよう、コートハウス・スタイルを採用したコンパクトな平屋。限られたスペースで家族が心地よく過ごすため、内とつながる庭、本棚、スタディコーナーなど、家族の共有スペースを充実させました。互いの気配を感じつつも、それぞれがパーソナルな居場所を見つけることができ、都市型住宅に欠かせないプライバシーの確保を実現した間取りとなっています。




▶︎事例の詳細はこちらから「心地よい距離感で安心して暮らせる、子育てに優しいコートハウス」
【30坪・3LDK】暮らしを支える動線が充実した平屋住宅
ナラの無垢床とビンテージ風インテリアが印象的な平屋住宅。高い住宅性能に太陽光発電を組み合わせたZEH(ネット・ゼロ・エネルギー・ハウス)の住まいには、共働きのご夫婦が家での時間を大切に楽しむための間取りの工夫が凝らされています。造作スイングドアを設けたシューズルームから水まわり、パントリー、キッチンまでつながる動線が家事をスムーズにしてくれます。




▶︎事例の詳細はこちらから「暮らしを支える動線が充実した平屋住宅」
【38坪・3LDK】人と愛犬の暮らしに寄り添ったコンパクトな平屋
「ペットにも、人にも優しい家」をコンセプトに、人生2度目の家づくりをしたご夫妻。床のウォールナット、オークやチェリーの端材を活用したリビング壁やキッチンスペースなど、LDKは素材の質感が楽しめる木の空間に。玄関ホールに設けた犬専用の洗い場や、庭に続くスロープなど、一緒に暮らす犬も快適に過ごせるよう、しっかりと間取りが工夫された住まいです。



▶︎事例の詳細はこちらから「人と愛犬の暮らしに寄り添った2度目の家づくり」
【43坪・3LDK】冬暖かく夏涼しい北海道らしいコンクリートブロックの平屋
「北海道らしい家がほしい」という要望のもと建てられた、コンクリートブロック造の平屋住宅。パブリックゾーンからプライベートゾーンへと各居室を数珠つなぎに並べた間取りのレイアウトは、通路と部屋を兼ねることで空間を有効に使え、どの部屋からも窓からの景色を楽しめます。室内空間も異素材の組み合わせにより心地よくまとまっています。



▶︎事例の詳細はこちらから「冬暖かく夏涼しい北海道らしいコンクリートブロックの家」
【47坪・3LDK】いつも子どもに目が届く。緑と木の温もり満ちるゆとりの平屋住宅
木の箱を重ねたような個性的な住まいに足を踏み入れると、平屋造りでは珍しい5mの吹き抜けが頭上に広がります。フラットな床の平家ながら、空間ごとに階高と天井の高さを変えることで、採光と視線の変化をもたらしています。暮らしやすさを追求した動線、ゾーニングで家事の負担感を減らすと同時に、建物と一緒に外部空間を計画したことで平屋の暮らしにより一層の広がりが生まれました。




▶︎事例の詳細はこちらから「いつも子どもに目が届く。緑と木の温もり満ちるゆとりの平屋住宅」
【49坪・4LDK】変形敷地を生かしたスキップフロアの平屋
道路との高低差が最大3mほどある傾斜地の勾配に沿って個室棟、ダイニング・水まわり棟、リビング棟と3つの床レベルを持つスキップフロアの平屋住宅。各部屋の床と天井の高さを違えることで、空間に心地よい立体感と奥行きを感じさせています。要望だった畑、バーベキュー、ドッグランといった自然豊かな環境を叶えながら、家の内側にも外部空間を取り込む仕掛けで、より豊かさを増すよう工夫された住まいです。



▶︎事例の詳細はこちらから「変形敷地を生かしたスキップフロアの平屋」
【54坪・3LDK】プライベートガーデンのある平屋の二世帯住宅
親・子世帯のプライベート空間を確保しながら、それぞれをゆるやかにつなぐ通路やデッキで巧みにゾーニングされた平屋の住まい。共有のLDKにつながるプライベートガーデンと、豪雪地帯の長い冬を見越した高性能の建物が、二世帯の暮らしを暖かく包みます。



▶︎事例の詳細はこちらから「二世帯をゆるやかにつなぐ大らかな平屋」
平屋の暮らしついてもっと知る!こちらの記事にも注目
形いろいろ、理由さまざま。平屋の見た目
注文住宅では、暮らし方に合わせて間取りが導き出されますが、それは家のフォルムにも影響を及ぼします。どんな「見た目」の家になるのかも家づくりでは気になるポイント。Replanでは数々の個性的な外観デザインの平屋を取材してきましたが、それは必ずしも奇をてらった結果ではありません。それぞれの姿形に、暮らしへの要望に基づいた納得の理由がありました。
▶︎記事はこちらから「形いろいろ、理由さまざま。平屋の見た目 Part.1」
▶︎記事はこちらから「形いろいろ、理由さまざま。平屋の見た目 Part.2」
家族の数だけ、かたちがある。平屋の間取り
Replanで紹介したいくつもの「平屋」を見ると、条件が限られているようでいて、そのプランは敷地条件や周辺環境、家族が願う暮らしのかたちなどによってさまざま。異なる条件下で建てられた、さまざまな工夫とアイデアがぎゅっと詰まった多様なプランをご紹介しています。
▶︎記事はこちらから「家族の数だけ、かたちがある。平屋の間取り Part.1」
▶︎記事はこちらから「家族の数だけ、かたちがある。平屋の間取り Part.2」
▶︎記事はこちらから「家族の数だけ、かたちがある。平屋の間取り Part.3」
いごこちの科学 vol.028/平屋づくりのポイントを考える
▶︎記事はこちらから「いごこちの科学 vol.028/平屋づくりのポイントを考える」
成功例としてご紹介した実例を見ていただいて分かるとおり、「平屋」とひと口に言っても家族構成や暮らし方で求める快適性や正解は異なります。また、条件的に無理だと思っていても、プランの工夫しだいで可能になることもあります。長い目で見て後悔しないためにも、家族や住宅会社の担当とじっくり話し合って、あなただけの間取りの正解を見つけてみてくださいね。
(文/Replan編集部)
Related articles関連記事
デザインが美しい住宅実例11選:東北のデザイン住宅2023
映画スーパーマリオ、大人も楽しめるオススメ作品


























